Search Close Search
Page Menu

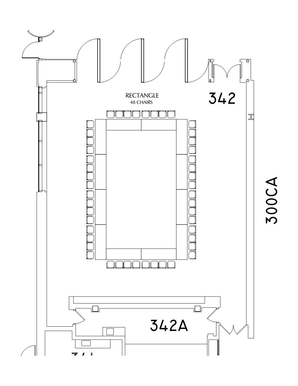
NERB Room Layouts

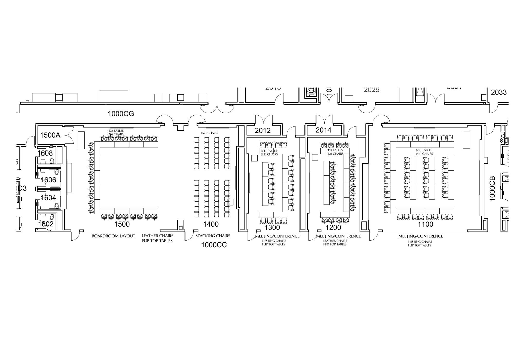
FCR Room Layouts